Even voorstellen; Gusmanson is een creatief ontwerpbureau dat bouwt aan digitale producten, huisstijlen en merkidentiteiten. Het kantoor is gevestigd in het industriele BINK36 in Den Haag. Onze huisstijl en website zijn ontworpen door Gusmanson. Andersom mochten wij op onze beurt weer aan de slag met hun interieur.
De identiteit van een identiteitsmaker bepalen
Aan de slag mogen voor een creatief bureau is leuk maar zit ook vol uitdagingen. Het bedrijf dat ons voorheen analyseerde voor een nieuwe huisstijl mochten wij gaan analyseren; 'Gusmanson is grafisch, kleurrijk, het betreft een hecht team en het is er altijd gezellig.'



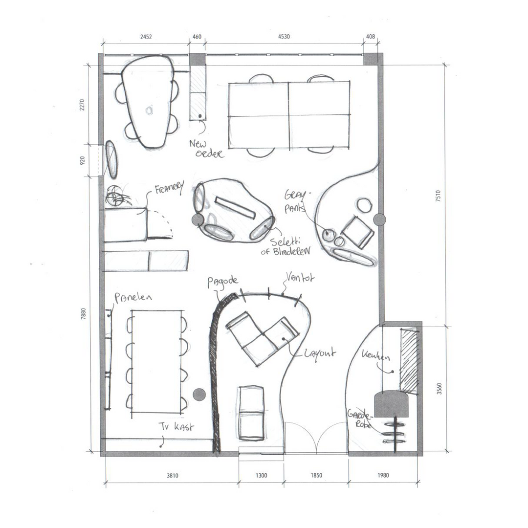
Zone volgt functie
Het kantoorpand in de Bink36 is in wezen een grote vierkante open ruimte. Hierbij was de akoestiek een groot probleem. De open ruimte hebben we onderverdeeld in vier zones die de verschillende werkwijzen behelzen; de inkom, de werkplek, de brainstormhoek en de presentatieruimte. De zones zijn opgesteld zonder dat er aparte afgebakende hokjes gecreëerd worden. Hierdoor blijft de luchtigheid en het licht in de ruimte behouden.












Flexibiliteit
De meubels binnen de zones zijn zo geselecteerd dat ze ook een functie in andere zones kunnen hebben. Dit zorgt voor extra flexibiliteit en interactie met de werkplek.

'Just like a Forest'
Het uitgangspunt voor het ontwerp is geïnspireerd op een wandeling door het bos. Organische vormen, het gebruik van planten en de indeling van de ruimte die uit dit concept zijn voortgekomen zijn leidend geweest voor het eindresultaat.